大田区 新築戸建 / 3LDK 7,580万円 専有97.08m2 不動産情報|大田区不動産情報/大田区の不動産会社 希希へ

売買専門 大田区不動産情報サイト 株式会社希希 地域密着

(株)希希は、東京都/大田区で不動産の売買を専門に取り扱っています。大田区の不動産/新築戸建 中古戸建/中古マンション/土地・建築条件付売り地など・・・特に 新築戸建ての新情報は豊富です!

  • 更新
  • 新築

登録・更新日:2025/07/20

 

大田区 新築戸建 

【新築戸建】駅チカ!!南東向きの家/車庫付
価格 7580万円 間取り 3LDK 土地面積 48.05m 2  ( 14.53坪 ) 建物面積 97.08m 2  ( 29.36坪 )
主要アクセス 東急池上線 蓮沼駅  から 徒歩2分 完成年月 2025年12月

[メールで簡単] この物件を問い合わせる

外観図

西蒲田6丁目 新築戸建 完成予想図

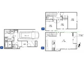
間取り図面

3LDK車庫付

電話番号
03-5482-1722
受付時間
AM 9:00 ~
問い合せ番号
4_561820

[メールで簡単] この物件を問い合わせる

  • 西蒲田6丁目 新築戸建 完成予想図
  • 2025年7月18日現地撮影/現況更地
  • 2025年9月21日現地撮影/本日(日)の為工事お休みです
  • 2025年10月12日現地撮影
  • 2025年10月24日現地撮影
  • 2025年11月04日現地撮影

担当者からコメント

LDK17.1帖明るい室内バルコニー1.5帖
インプラス・二重窓で遮音対策ずみ
3階に3部屋確保収納付・トイレ・セカンド洗面
宅配BOX・リビングワークスペース

・耐震等級3
・断熱等級5
・一エネ等級6
・住宅性能評価

---ZEH水準省エネ住宅---

◆安心の保証付◆
・アフターサービス保証付
・FRP防水工事保証
・白蟻保証防あり保証
・住宅瑕疵担保責任保険
・地盤保証
・フラット35S-Bプラン

◆インフォメーション
まいばすけっと蓮沼駅東店徒歩3分
スーパーライフ西蒲田店徒歩6分
スギ薬局東矢口店徒歩5分
東京蒲田病院徒歩5分
明日葉保育園徒歩5分
矢口幼稚園徒歩6分
相生小学校徒歩8分
御園中学校徒歩9分
はすぬま温泉至近
電話番号
03-5482-1722
受付時間
AM 9:00 ~
問い合せ番号
4_561820

[メールで簡単] この物件を問い合わせる

物件詳細情報

基本

アクセス 東急池上線 蓮沼駅  から 徒歩2分 種別 一戸建て
所在地 東京都大田区西蒲田6丁目 学校区 -

費用

価格 7580万円 公庫・融資
借地期間 -年 地代 -円
駐車場 敷地内 バイク置場 -
駐輪場 -

土地

土地権利 所有権 土地持分 -
土地面積 (公簿) - 土地面積 (実測) 48.05m 2  ( 14.53坪 )
私道負担面積 - 私道負担割合 -
セットバック - 接道 公道7.1m (接5.2m)
建蔽率 80% 容積率 300%
地目 宅地 地勢 -
都市計画 市街化区域 用途地域 商業
防火 - 高度地区 -
国土法届出 - その他法令上の制限 -

建物

構造 木造 完成年月 2025年12月
建築面積 - 敷地面積 -
建物面積 97.08m 2  ( 29.36坪 ) 階建 3階建
間取り 3LDK  バルコニー面積 -
リフォーム - リノベーション -
施工会社名 - 建築確認番号 -
設備・条件 対面キッチン

その他

現況 ・ 入居 未完成  ・  相談 取引態様 仲介
次回更新日 2025/10/20 QRコード

QRコードから物件情報を見ることが出来ます。読み取りにくい方はこちらからQRコードを拡大できます。

担当者 本田

同じエリアの他の物件

区画番号 階建 価格 間取り 建物面積 土地面積 物件詳細 お問い合せ
- 3階建 7990万円 4LDK 向き 115.66m² 65.21m²

詳細を見る

問い合わせる
- 3階建 7780万円 3LDK 向き 93.93m² 52.99m²

詳細を見る

問い合わせる
全3棟/A号棟 3階建 6180万円 3SLDK 西向き 130.82m² -

詳細を見る

問い合わせる
全3棟/B号棟 3階建 6180万円 3SLDK 西向き 130.82m² -

詳細を見る

問い合わせる
- 3階建 8380万円 2SLDK 向き 108.93m² -

詳細を見る

問い合わせる
- 3階建 8480万円 3SLDK 向き 106.35m² -

詳細を見る

問い合わせる
- 3階建 5680万円 3LDK 向き 57.29m² -

詳細を見る

問い合わせる
- 3階建 7380万円 4LDK 向き 122.19m² 69.17m²

詳細を見る

問い合わせる

大田区 新築戸建への お問い合わせは株式会社 希希  まで

株式会社 希希  
146-0095東京都大田区多摩川 1-9-1

会社案内

印刷する

お電話・FAXでのお問い合せ
TEL:03-5482-1722 FAX:03-5482-1723
受付時間
AM 9:00 ~

物件の空き状況や、内見希望などお気軽にお問い合わせください

[メールで簡単] この物件を問い合わせる

こちらの物件もあります。

  • 東京都大田区池上

    8790万円

    4LDK / 101.38m²

    池上駅から徒歩 9分

    候補

  • 東京都大田区西蒲田

    7380万円

    4LDK / 122.19m²

    池上駅から徒歩 8分

    候補

  • 東京都大田区西蒲田

    6180万円

    3SLDK / 130.82m²

    蒲田駅から徒歩 12分

    候補

  • 東京都大田区中央

    8080万円

    3LDK / 79.7m²

    池上駅から徒歩 16分

    候補

  • 東京都大田区西蒲田

    5680万円

    3LDK / 57.29m²

    蒲田駅から徒歩 12分

    候補

  • 東京都大田区東雪谷

    1億1498万円

    3LDK / 131.08m²

    洗足池駅から徒歩 4分

    候補

  • 東京都大田区東馬込

    6080万円

    4LDK / 92.12m²

    馬込駅から徒歩 9分

    候補

  • 東京都大田区大森北

    8480万円

    3SLDK / 100.64m²

    平和島駅から徒歩 8分

    候補

  • 東京都大田区池上

    6680万円

    1SLDK / 88.78m²

    矢口渡駅から徒歩 7分

    候補

  • 東京都大田区石川町

    5180万円

    2LDK / 52.59m²

    石川台駅から徒歩 5分

    候補

  • 東京都大田区池上

    6580万円

    1SLDK / 88.78m²

    矢口渡駅から徒歩 7分

    候補

  • 東京都大田区中央

    4980万円

    3LDK / 91.11m²

    蒲田駅から徒歩 14分

    候補

  • 東京都大田区西蒲田

    7580万円

    3LDK / 97.08m²

    蓮沼駅から徒歩 2分

    候補

  • 東京都大田区東蒲田

    8280万円

    3LDK / 113.33m²

    梅屋敷駅から徒歩 8分

    候補

  • 東京都大田区池上

    6490万円

    2SLDK / 127.56m²

    池上駅から徒歩 9分

    候補

最近見た物件 (1)